
银行金属墙板产品:
产品优势:
l 结构简单、模块化装配;
l 表面处理丰富、颜色多样;
l A级防火、熔点高、硬度强;
l 无毒无害无异味、绿色环保、无辐射;
l 稳定性强、平整不易变形;
l 防水、防潮、防霉;
l 抗菌易清洁、抗紫外线、耐酸耐腐蚀;
l 方便拆卸、标准板可互换、可重复使用。
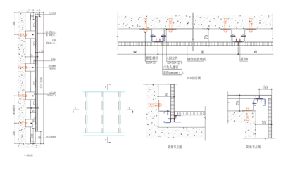
产品结构示意图:



银行金属墙板产品:
产品优势:
l 结构简单、模块化装配;
l 表面处理丰富、颜色多样;
l A级防火、熔点高、硬度强;
l 无毒无害无异味、绿色环保、无辐射;
l 稳定性强、平整不易变形;
l 防水、防潮、防霉;
l 抗菌易清洁、抗紫外线、耐酸耐腐蚀;
l 方便拆卸、标准板可互换、可重复使用。
产品结构示意图:
